CQ9·游戏(电子)官方网站

CQ9电子北京隅东序官网—(隅东序优缺点)-售楼处欢迎您-CQ9·游戏

0523-86169000

行业新闻

CQ9电子北京隅东序官网—(隅东序优缺点)-售楼处欢迎您

发布时间:2024-12-13点击次数:

  北京隅东序--楼盘详情(房价,价格,地址,户型图,交通,周边配套,备案价,楼盘详情,售楼处电话,售楼处地址,最新房源,最新价格,最新动态,最新进展等详情)

CQ9电子北京隅东序官网—(隅东序优缺点)-售楼处欢迎您(图1)

  东四环、朝阳区、朝阳港板块、17号线地铁、人大附学校、统一规划、国企开发商、自建幼儿园、3-3.1米层高、品质精装、270°转角弧度窗、跑道式阳台、自带1500㎡会所、紧邻商业、外阳台、超高得房率、全景落地窗、铝板+玻璃幕墙外立面。

CQ9电子北京隅东序官网—(隅东序优缺点)-售楼处欢迎您(图2)

  2024年06月25日,北京市朝阳区十八里店朝阳港一期土地一级开发项目1303—686、1303—687、A334地块用地出让。

  仅有金隅一家房企报名,最终金隅集团以63.8亿元底价竞得,住宅楼面价约5.22万元/㎡。

  686地块用地性质为二类居住用地,容积率2.8、控高60米。687地块为A334托幼用地,除此之外,能源站1处、通信接入机房1处、有线处,需开发商无偿配建。

CQ9电子北京隅东序官网—(隅东序优缺点)-售楼处欢迎您(图3)

  东序项目在东四环外1000米,到东三环3.7公里,距离东五环2.7公里。

  项目南侧3公里是近几年风头正盛的亦庄经济开发区,西侧有丰台分钟寺和朝阳小红门两个新房竞品板块。

  东侧3.6公里是王四营板块,那里是十八里店最直接竞对,环线差不多,各有优缺点

CQ9电子北京隅东序官网—(隅东序优缺点)-售楼处欢迎您(图4)

  交通配套方面,项目西侧500米的大羊坊路很重要,这条路连接了三环和五环。

  能快速上主路,而且是上四环,相对其他四环五环之间的项目来说,东序具备很大的优势。(有的楼盘地段虽然位于四环,但开车上主路却要去五环)

  大羊坊路在三环到四环那段还凑合,是十里河的交通要道,使用率更高。但四环到五环这段路况确实不好,有非常大的提升空间。

  17号线算是北京东部南北方向的主框架级线路,大站快车,贯穿南北,途经的都是重要板块,多个换乘站,对地铁通勤族十分友好。

CQ9电子北京隅东序官网—(隅东序优缺点)-售楼处欢迎您(图5)

  沿着东四环,有燕莎奥莱、芳园里IDmall、fudi仓储会员店、合生汇。

  附近的大商圈是国贸和亦庄,有不少现代化商场,如果想要接地气的采购,在旁边的十里河就可以解决。

  十里河建材城是北京最大的建材城,后期涉及到装修或者是买电器家具什么的,到这可太方便了,规模之大足够让人挑花眼。

  十里河还有大洋路批发市场,瓜果蔬菜、鱼肉蛋奶、海鲜米面一应俱全。这里的麦德龙超市也是仓储式购物,适合集中采购。(再算上亦庄的山姆会员店,开车30分钟内,东序周边有三个仓储式大超市。)

CQ9电子北京隅东序官网—(隅东序优缺点)-售楼处欢迎您(图6)

  周边医院非常多,但以私立民营、急诊抢救类居多。最近的公立是潘家园的朝阳区妇幼保健院、中医科学院肿瘤医院,优质大三甲您还是得奔东西城。

  附近尚有医疗利好,在东五环外的豆各庄,绿城沁园南侧,北京中医医院确定在这建新院区。

CQ9电子北京隅东序官网—(隅东序优缺点)-售楼处欢迎您(图7)

  大家就记住这盘西北角200米是人大附就行了,上学不用愁了,入学概率几乎可以说100%,即便你想去周边其他学校也去不了的那种。

  (旁边的十八里店中学已经改为北工大附中,北工大这牌子肯定和人大附、十一没法比,但在朝阳这地界儿也算有一定影响力,起码还真弄了好几个分校了。朝阳区知名次新盘首城国际就是北工大的学校,也还行,双井那些次新小区的中学基本全都是北工大附。)

CQ9电子北京隅东序官网—(隅东序优缺点)-售楼处欢迎您(图8)

  最左侧的685、693、694地块为金隅云筑的1期、2期、3期,股东有些区别,但是操盘的全都是金隅。前面3期去化都不错,库存房源不多,但都还有一点点,83㎡起步

CQ9电子北京隅东序官网—(隅东序优缺点)-售楼处欢迎您(图9)

CQ9电子北京隅东序官网—(隅东序优缺点)-售楼处欢迎您(图10)

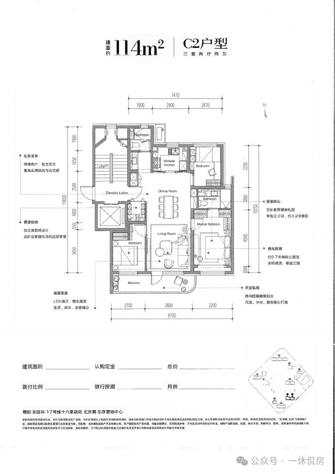
  只是两面宽,而且又没有客厅大转角飘窗的设计,我实在不想昧着良心说这户型有多好,真是说不出口。

CQ9电子北京隅东序官网—(隅东序优缺点)-售楼处欢迎您(图11)

CQ9电子北京隅东序官网—(隅东序优缺点)-售楼处欢迎您(图12)

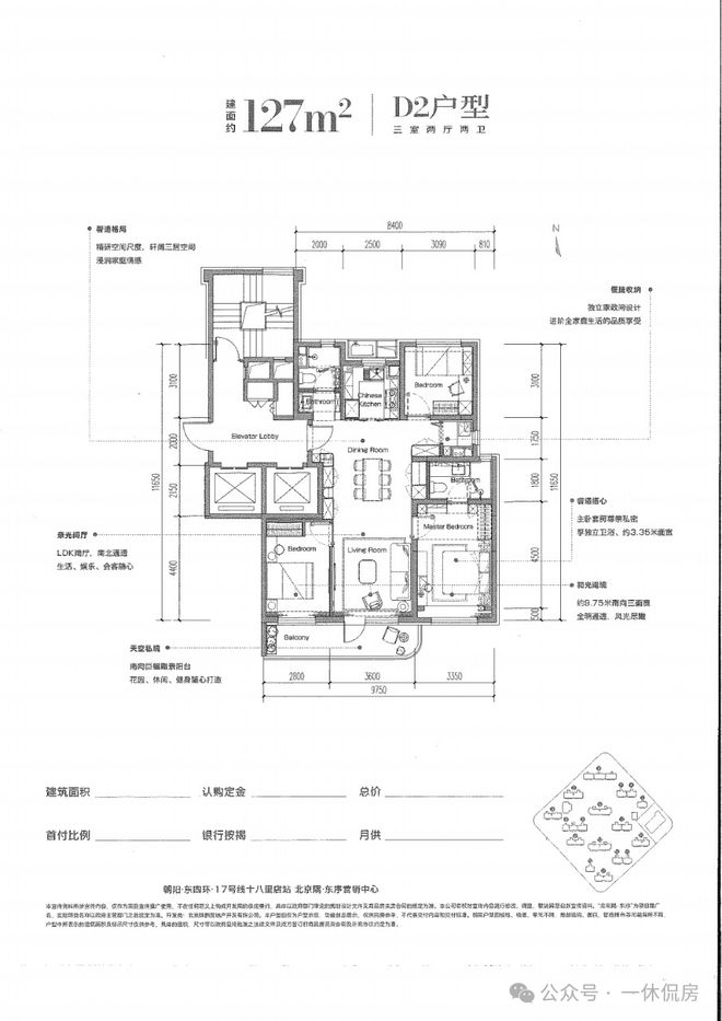
  127㎡和刚刚的114㎡很相似,如果居住人数不多的线㎡的优势是梯户比,两梯两户,更有尊贵感,等电梯时间更短。

CQ9电子北京隅东序官网—(隅东序优缺点)-售楼处欢迎您(图13)

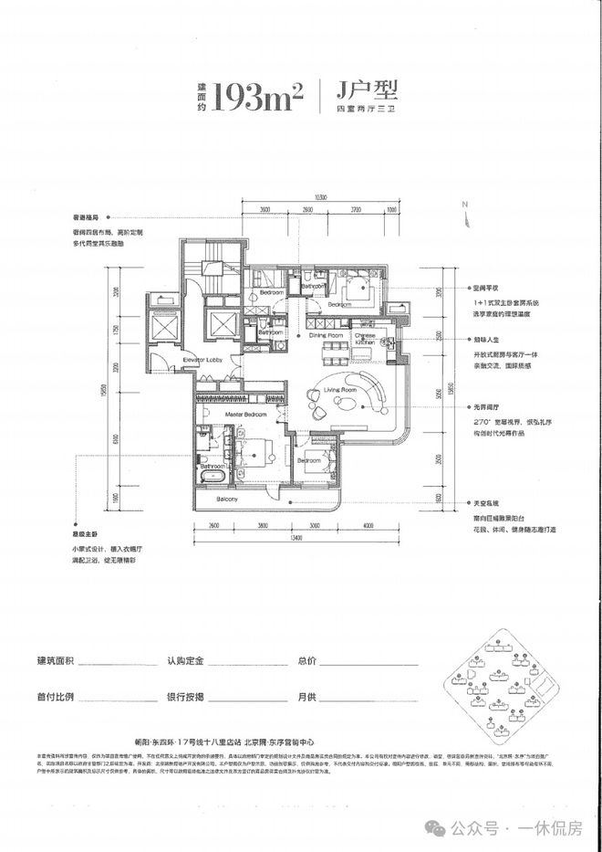
  南北通透性不如刚刚那127㎡,但133㎡因为全都是边户,会多一个朝西或者朝东的方向,所以能实现270°的通风采光,也没问题。

CQ9电子北京隅东序官网—(隅东序优缺点)-售楼处欢迎您(图14)

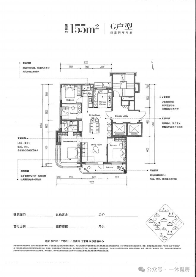
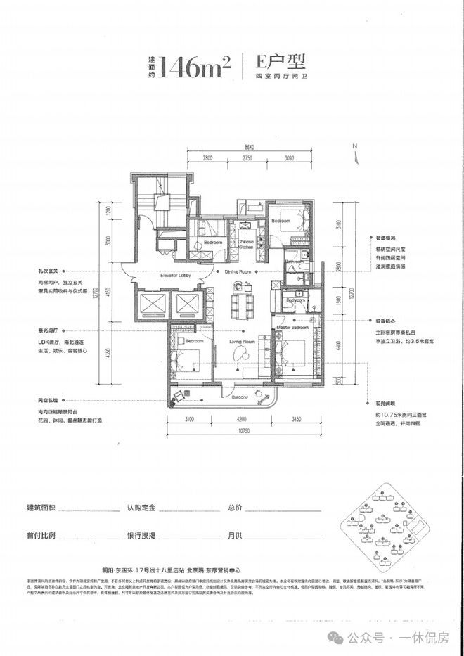
  146㎡,四室两厅两卫。眼镜户型,也叫四叶草布局,四个卧室分列一角互不打扰。

CQ9电子北京隅东序官网—(隅东序优缺点)-售楼处欢迎您(图15)

  边户,依然是270°采光通风。南向俩卧室,北向只有个房间,另一个放在了西边或者东边,我个人是比较喜欢这种,毕竟北边的卧室没采光,但是东边或者西边会有半天采光。

CQ9电子北京隅东序官网—(隅东序优缺点)-售楼处欢迎您(图16)

  很新颖的设计,客厅并没有放在户型平面的最南侧,虽然是转角,景观视野很好,但如果单就阳光直射的角度来说,客厅有点吃亏。果然,有利就有弊啊。

  再就是客厅的电视背景墙的位置,白天看电视的话,光线问题需要考虑,长度也偏小。对于想要用投影的朋友来说,不是很友好,需要提前考虑这个问题。

CQ9电子北京隅东序官网—(隅东序优缺点)-售楼处欢迎您(图17)

  2、金隅在商品房纯住宅方面的操盘经验不是别的多,大多是近一两年的新项目,基本还没什么交付的可参考。二手房市场中,开发商的知名度占不到便宜,但在朝阳还好,金隅在朝阳项目比较多。

  4、朝南万亩森林公园,别信,不靠谱。这一带的公园太琐碎了,硬要拼凑其实没有意义,对标朝阳公园更是天方夜谭。

  6、四周城市界面待完善,现状很差,您得等。朝阳港的利好,进度有些慢啊。(其他区和其他板块,大多也慢,本质是缺钱)

  附近肯定是有商业规划,但是到底建成啥样?还很没谱呢。这么说吧,一休是细节控,对数据很严谨,我发现楼盘的宣传资料中,有的版本说22万㎡商业,有的说28万㎡。还有说20多万是整个板块内全部商业的面积,挨着东序项目的4/5号地块,实际商业体量12.6万㎡。讲线万㎡商业也够大了,但关键是数字差异怎么这么大?搞不懂。甚至旁边用地属性也还在变化,目前看,商业用地在增加,是好事。

CQ9电子北京隅东序官网—(隅东序优缺点)-售楼处欢迎您(图18)

  不说别的,就单单一个【东四环】作为卖点,就已经很足了。东四环概念的大部分新盘,除了王四营拉胯点,其他大多是10万+的价格,而且卖的都还不错,说明市场认可。更别说,隅东序是真东四环,上四环特别方便,再加上守着门口地铁站。东四环+地铁盘,这两个优势,决定了隅东序的下限很高。(大羊坊路有了新消息,确定要优化提升)

  整个板块,可谓是白纸一张,有足够想象空间。朝阳港是先规划后发展,城市界面会很新,很协调,功能设计和配套分布也会更加科学合理。如果真要找历史案例的话,新北苑比较适合,同一时期的房子扎堆,城市界面好,同样有17号线、朝阳头部学校分校。不同的是十八里店是四环,而且全部是商品房,而新北苑在五环外,有少许保障房源。高级居住区,很有前景。

  金隅在十八里店的操盘,用结果说话,非常成功。当初,从各路大V到开发商,几乎是一边倒的更看好王四营。开发商花了大价钱调研,最后全部去抢王四营,那时候十八里店真的是没人要,只能是国企金隅为了朝阳区的脸面来托底。就是这样的一手烂牌,金隅狠狠打脸了所有人,服啊。

  一休认为,市场低估了17号线的重要性。我个人感受来说,17号线号线这种大站快车,比普通地铁快太多了。只不过17号线目前还只是南段和北段分开运行,中间段没贯通,所以没有南北快速到达的通畅感。再者,17号线的路线经过了大量的商务区、商圈,非常实用。某种程度来说,王四营卖不过十八里店也有地铁原因。王四营的7号线号线,站点重要性和速度都吃亏。

  项目自带商业,目前披露北侧两个商业地块,对于十八里店板块价值是如虎添翼。环线好,通勤方便,适合生活,学校不错,这几点要素构成了隅东序的基本盘,稳。CQ9电子用户评价汇总CQ9电子用户评价汇总

0523-86169000
E-mail

webmaster@jshdtx.com

扫一扫,添加微信

Copyright © 2024 CQ9电子通信设备有限公司 版权所有